Доставка ЖБИ по Приморску
и Ленинградской области
Ежедневно 9:00-20:00
Ежедневно 9:00-20:00

«Монолит ЖБИ78»

Приморск, Железнодорожная улица, 6Б

пн-вс 9.00-20.00

Отдел продаж:

+7 (812) 309-71-78

Электронная почта:

info@gbi78.ru

круглосуточно

Прайс-лист:

Фундамент ФМ-7 дорожных знаков

Цена: 42 300 руб / шт
В наличии 65 шт
Макс. производ-во 200 шт./сутки
Работаем по постоплате
Узнать срок поставки

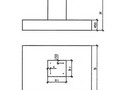
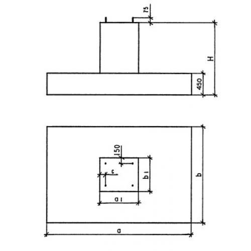
Железобетонный фундамент ФМ7 предназначен для установки металлических рамных опор дорожных знаков. Он производится из высококачественного бетона марки B15. Для обеспечения прочности фундамент усилен арматурной сеткой, выполненной из стали класса А-III и проволокой класса Вр-I. Для удобства монтажа предусмотрены специальные подъемные петли.

Характеристики Фундамент ФМ-7 дорожных знаков:

Вид изделия:

Производитель: Монолит ЖБИ78
Ширина, мм 1500
Длина, мм 2000
Высота, мм 1200
Вес, т 4.1
ГОСТ/ТУ 3.503.9-80 вып.2
Маркировка ФМ7
Марка бетона B15
Объем, м3 1.67
Морозостойкость F100

Стоимость доставки

Способ доставки Макс. длина груза, м Стоимость доставки по Приморску и ЛО
Машина до 3,5 тн до 30 м3 6 от 2 200 руб
Машина до 5 тн до 30 м3 6 от 3 500 руб
Машина до 10 тн до 50 м3 8 от 6 200 руб
Машина до 20 тн до 80 м3 8 от 9 600 руб
Манипулятор до 5 тн 5 от 4 700 руб
Манипулятор до 10 тн 10 от 8 600 руб
Манипулятор до 20 тн 14 от 16 900 руб
Акция - доставка манипулятором 20 тн 9 500 руб. в районе 30 км от КАД
Сертификаты качества
НАШИ ПРЕИМУЩЕСТВА
Всегда в наличии на складах более 400 единиц товара
Быстрое производство: 4 завода жби в Приморске и Ленинградской области
Скидки юр.лицам на заказ от 200 000 руб.
Недорогая доставка: у нас 5 Scania с манипулятором. Даем цены на доставку ниже рынка!

Фундамент ФМ-7 применяется для монтажа дорожных знаков, столбов и опор. Изготавливается из железобетона, что обеспечивает его исключительную прочность и долговечность. Эта конструкция обладает высокой устойчивостью к ветровым воздействиям, вибрационным нагрузкам от транспортных средств и другим внешним факторам. Данный фундамент пригоден для эксплуатации в районах с сейсмической активностью.

Для установки готовых железобетонных блоков фундамента ФМ-7 подготовьте основание из уплотнённого щебня и песка минимальной толщиной 300 мм. Основание должно располагаться таким образом, чтобы фундамент был углублён не менее чем на половину его высоты.

У нас вы можете купить железобетонный фундамент ФМ-7 без посредников — по цене от производителя.

Ассортимент жб изделий завода «Монолит» насчитывает более 10000 наименований, в продаже присутствует Фундамент ФМ-7 дорожных знаков с типовыми размерами мм. Регламентирующим нормативом для продукции этого вида является ГОСТ, в соответствии с которым изделие обладает массой в кг. Продукция всегда есть в наличии, цены указаны без учёта доставки. Актуальную стоимость Фундамент ФМ-7 дорожных знаков вы можете запросить у менеджера компании по телефону +7 (812) 309-71-78, отправив заявку с сайта или электронное письмо на адрес monolit@gbi78.ru.


Рекомендуем также:
Собственное производство
Наши объекты

Объект: Западный скоростной диаметр (ЗСД)

Местоположение: Приморск

Год строительства: 2016

Описание: Поставка железобетонных балок, плит и элементов опор для строительства западного скоростного диаметра. Продукция использовалась для возведения мостовых сооружений и эстакад.

Объект: Стадион "Газпром Арена"

Местоположение: Приморск

Год строительства: 2017

Описание: Поставка железобетонных конструкций для строительства трибун, перегородок и перекрытий стадиона. Продукция использовалась для создания несущих и внутренних конструкций.

Объект: Мост через реку Охта

Местоположение: Приморск

Год строительства: 2019

Описание: Поставка железобетонных балок и элементов опор для строительства моста. Продукция использовалась для возведения опор и пролётных строений.

Видеоэкскурсия по заводу Монолит-ЖБИ:

Оплата и доставка

Вы можете оплатить свой заказ тремя способами:

  • Переводом на расчётный счёт в банке
  • Наличными в офисе
  • Картой Visa или MasterCard

Доставка осуществляется по Приморску и Ленинградской области. От габаритов груза и его веса будет зависеть вид транспорта, обычно выбор делается между бортовыми автомобилями, грузовиком с кузовом 6 метров или шаландой длиной 12 м. По желанию заказчика возможна аренда манипулятора.

Схема работы с нами
1
Заявка с сайта или по телефону

Заявка с сайта
или по телефону

2
Консультация с менеджером

Консультация
с менеджером

3
Согласование сроков и стоимости

Согласование
сроков и стоимости

4
Поставка ЖБИ

Поставка ЖБИ

5
Оплата

Оплата

Наши преимущества
Опытные квалифицированные
			сотрудники

Опытные квалифицированные сотрудники

Продукция соответствует ГОСТ

Продукция соответствует ГОСТ

Ассортимент из более 10.000 изделий

Ассортимент из
более 10.000 изделий

Полный пакет документов

Полный пакет документов

Быстрая доставка по Приморску и Ленинградской области

Быстрая доставка
по Приморску и Ленинградской области

Оставить отзыв
Наш офис

Нет времени искать нужный товар?
Получите консультацию по телефону!

Видеообращение генерального директора
Наши клиенты
ЦДС
ЛенСтройТрест
ОтделСтрой
ПИК
РосСтройИнвест
SetlCity

Наши партнеры
ЕвроЦементГрупп
БалтЩебень
Петросталь

Расположение офиса: